
Services
As-BuiltFloorPlans
Overview
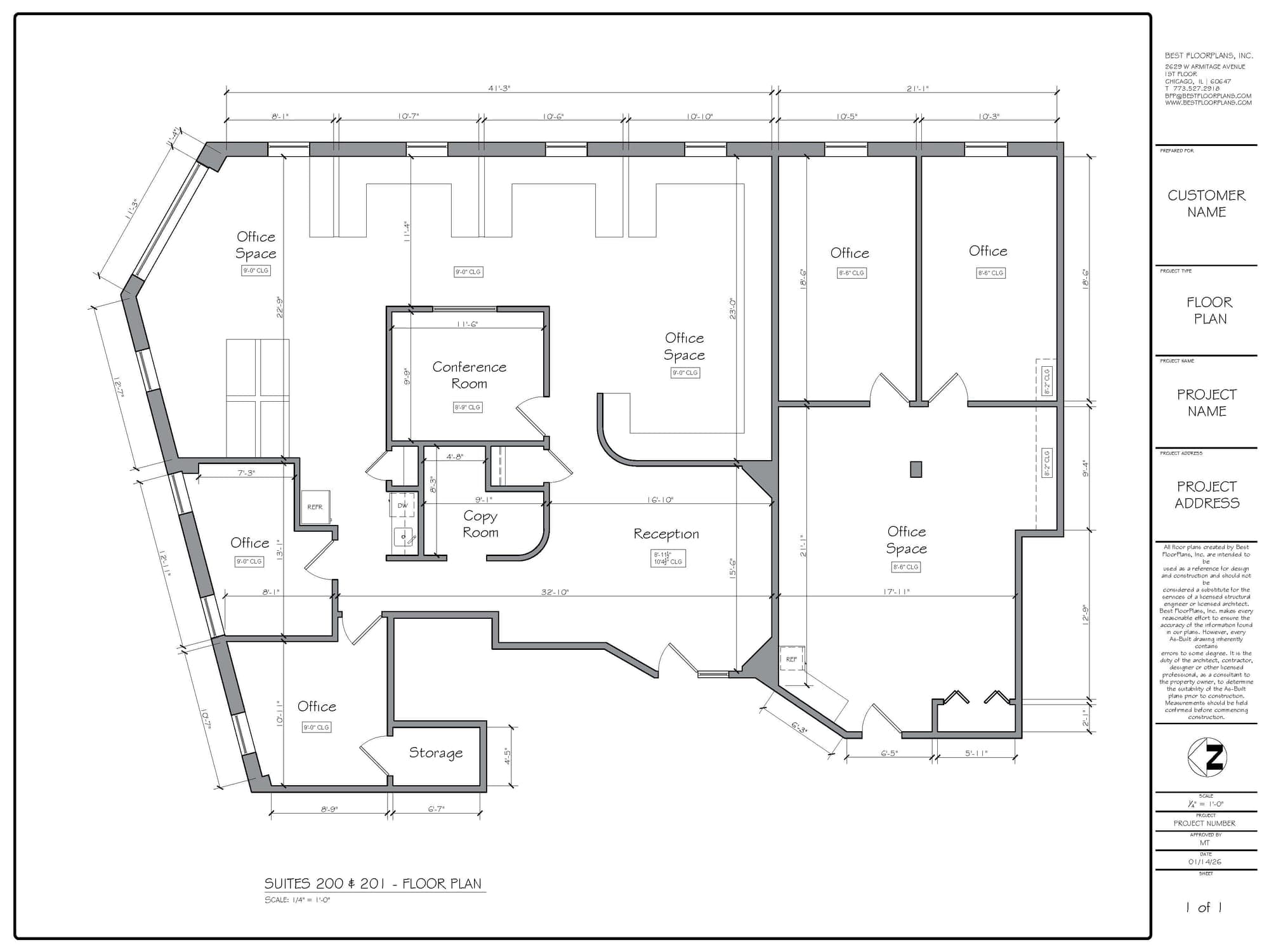
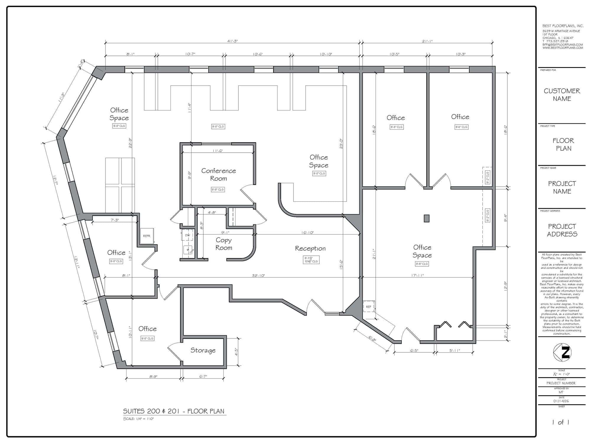
When you need the existing conditions documented correctly, our as-built floor plans provide the verified foundation for starting design, renovation, permitting, and planning purposes. Unlike marketing floor plans, these are technical drawings focused on the real, built conditions.
Deliverables
Our Process
Consultation
Goals, use cases (design, permit, bid, documentation), scope.
Field Measure
Laser measurement, LiDAR scanning, photos, ceiling heights.
Drafting & QA
Walls, windows, openings, built-ins, appliances, mechanical equipment.
Delivery
PDF & DWG ready for architects, designers, contractors, developers.
Use Cases
Why It Matters
Accurate as-built drawings reduce change orders, prevent costly surprises, and accelerate downstream work. Start right; everything that follows benefits.
As-Built Portfolio
Precise architectural documentation for commercial and residential properties.